
聯系方式 |
徐州盛勤測控技術有限公司
聯系人:劉經理 耿經理電話:0516-83400879 83406882 手機:13305218692 13382686058 地址:中國 ● 徐州 ● 銅山工業園 |
| 首頁 >>產品中心 >>高精度皮帶秤 |

一、適用范圍
ICS系列電子皮帶秤是一種結合先進的微機控制動態稱重儀器組成的動態計量產品,實在皮帶輸送系統中對散狀物料進行連續計量的理想設備,整機設計合理、緊湊,具有完善的稱重和控制數學模型,并有多種輸入輸出信號形式。其結構簡單、稱量準確、工作穩定、運行可靠、操作方便、維護量小,不僅適用于常規環境,而且適用于酸、堿、鹽及大氣腐蝕環境。廣泛應用于冶金、電力、礦山、港口、化工、水泥、建材、糧食等行業。
ICS—14型高精度電子皮帶秤,安裝在傾斜角度比較。ā10度)的皮帶輸送機上,采用全懸浮式稱重橋架,該種形式的橋架,無支點和可移動件,該類電子皮帶秤的長期穩定性和稱重的高精度性是其它電子皮帶秤都無與倫比的,產品主要適用于現場工藝要求高或需要進行貿易結算的行業現場。
二、工作原理:
當輸送物料通過電子皮帶秤計量區域時,稱重傳感器檢測到皮帶上的物料重量,并轉換成電壓信號,送入動態稱重儀表;速度傳感器檢測到皮帶的速度信號,送入動態稱重儀表;動態稱重儀表把接收到的重量信號及速度信號,通過微處理器進行處理,得到物料的瞬時流量并按照計算程式計算得到累計重量,分別在動態稱重儀表上將瞬時流量、運行速度、累計重量等數據顯示出來。儀表也可同時輸出正比于瞬時流量的模擬電流信號,傳送給DCS等集控系統,顯示電子皮帶秤的瞬時流量和累計量以及自動化管理。
三、主要技術參數:
系統精度:±0.125%;
稱量范圍:0~2000t/h;
皮帶寬度:500~2400mm;
皮帶速度:0.05~4m/s;
皮帶輸送傾角:0~10°;
適用托輥形式:三角槽形、平托輥;
環境溫度:
機械:-20℃~50℃
儀表:-20℃~40℃
電源電壓:220V(-15% --- +10%、)50HZ±2%
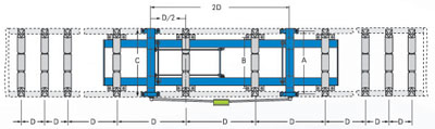
四、ICS-14型電子皮帶秤組成:
主要由稱重橋架、稱重傳感器(4只)、速度傳感器(1只)、稱重顯示儀(1臺)、測速裝置(1套)和全套安裝附件組成。
【稱重橋架】
1、全懸浮式結構,無耳軸支點和可移動件,維護量;
2、單元組件結構,力傳遞環節少,安裝簡潔,方便;
3、獨特的矩形杠桿,剛性好、無變形、零點穩定性好;
4、抗側向力、抗水平分力、有效減少了皮帶跑偏和落料偏移對系統精度的影響;
5、四只稱重傳感器,受偏載影響小,平衡好,計量精度相 當高;
6、稱重區域廣,四組拖輥使皮帶對稱重精度影響最;
7、粉塵較大及有酸、堿、鹽等腐蝕性的特種場合,秤架可以采用不銹鋼制造或進行防腐處理。
輸送機 | DT75 | DT11 | DT75 | DT11 | DT75 | DT75 |
帶寬 | A | B | C | |||
500 | 516 | 536 | 720 | 740 | 770 | 790 |
650 | 666 | 686 | 870 | 890 | 920 | 940 |
800 | 866 | 886 | 1070 | 1090 | 1120 | 1140 |
1000 | 1086 | 1076 | 1300 | 1290 | 1350 | 1340 |
1200 | 1336 | 1326 | 1550 | 1540 | 1600 | 1590 |
1400 | 1536 | 1526 | 1750 | 1740 | 1800 | 1790 |

請記住我們的網址:http://m.fsqc.com.cn/pidaicheng/pidaicheng-97.html 本文由徐州盛勤測控技術有限公司,轉載或引用本網版權所有之內容須注明"轉自(或引自)徐州盛勤測控"字樣,并標明本網網址http://m.fsqc.com.cn/pidaicheng/pidaicheng-97.html
Copyright © 2014-2015 徐州盛勤測控技術有限公司(皮帶秤/稱重給煤機/定量給料機) All Rights Reserved.
地址:中國 ● 徐州 ● 銅山工業園 電話:0516-83400879 83406882 蘇ICP備15018939號 網址:http://m.fsqc.com.cn 公司的主導產品有:皮帶秤ICS-14、皮帶秤ICS-17、皮帶秤ICS-20、皮帶秤ICS-30系列、定量給料機JGC-40、耐壓式稱重給煤機NJGC-30、采制樣裝置、料斗秤、螺旋秤、配料系統和輸煤實時計量集控系統、工廠組態監控控制系統等 |
![]() 掃一掃,關注 盛勤測控 官方微信 ![]() |
